Description
Welcome to Monthermer Road, Cardiff – a stunning property with great potential! This spacious house boasts 1 reception room, 7 bedrooms, and 3 bathrooms, offering ample space for comfortable living. it also has one extra storage/bedroom.
Currently rented out long-term with a yearly rent review in January, this property generates a fantastic rental income of £2800 per month, providing an impressive 8.62% annual return on investment.
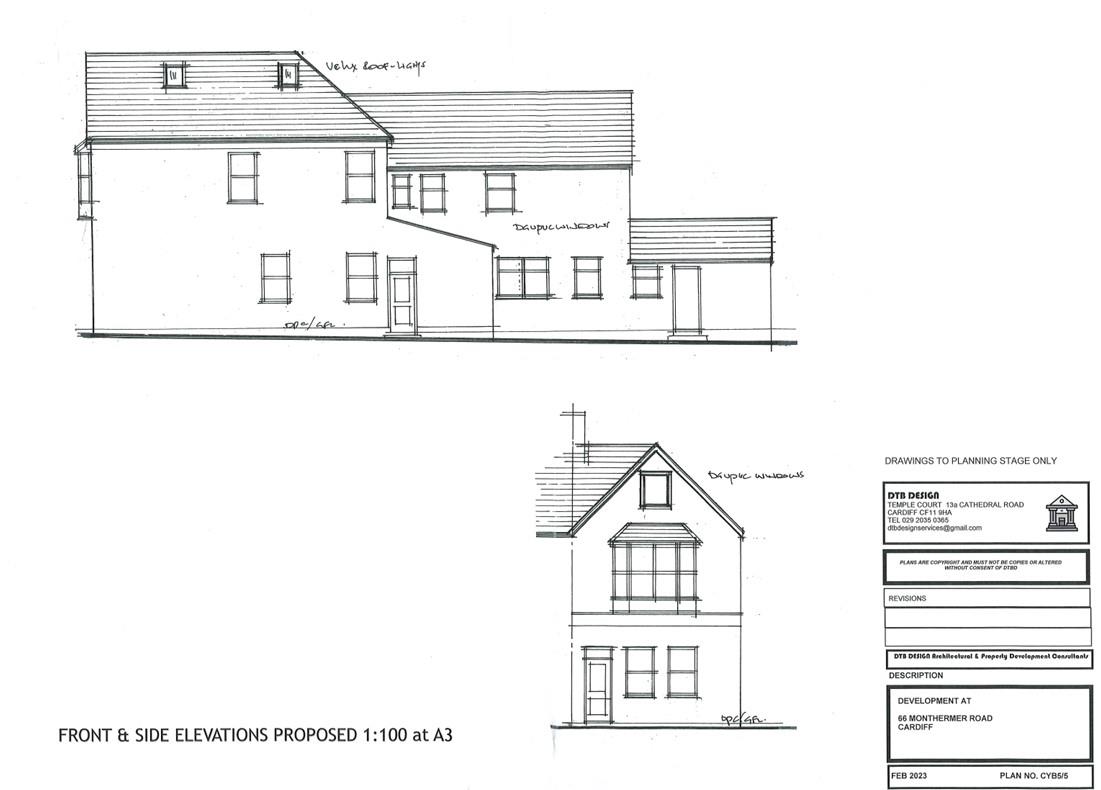
For those with a keen eye for development, there is an exciting opportunity to explore. Planning permission has been granted for the conversion of this property into 4 flats, under application number 23/00479/FULL. This presents a lucrative chance to maximise the property’s potential and increase its value significantly.
Located in a desirable area of Cardiff, this property is not only a great investment opportunity but also a wonderful place to call home. Don’t miss out on the chance to own a property with such promising returns and development prospects. Contact us today to arrange a viewing and secure your future in this fantastic property!




